Stock Plans
Why buy stock plans?
Projects
AI Rendering & Pricing
Architecture
Contact Us
RESIDENTIAL ARCHITECTURAL PROJECTS
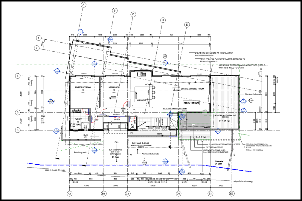
Maraetai (202M² Beach holiday home)
Scroll to Top